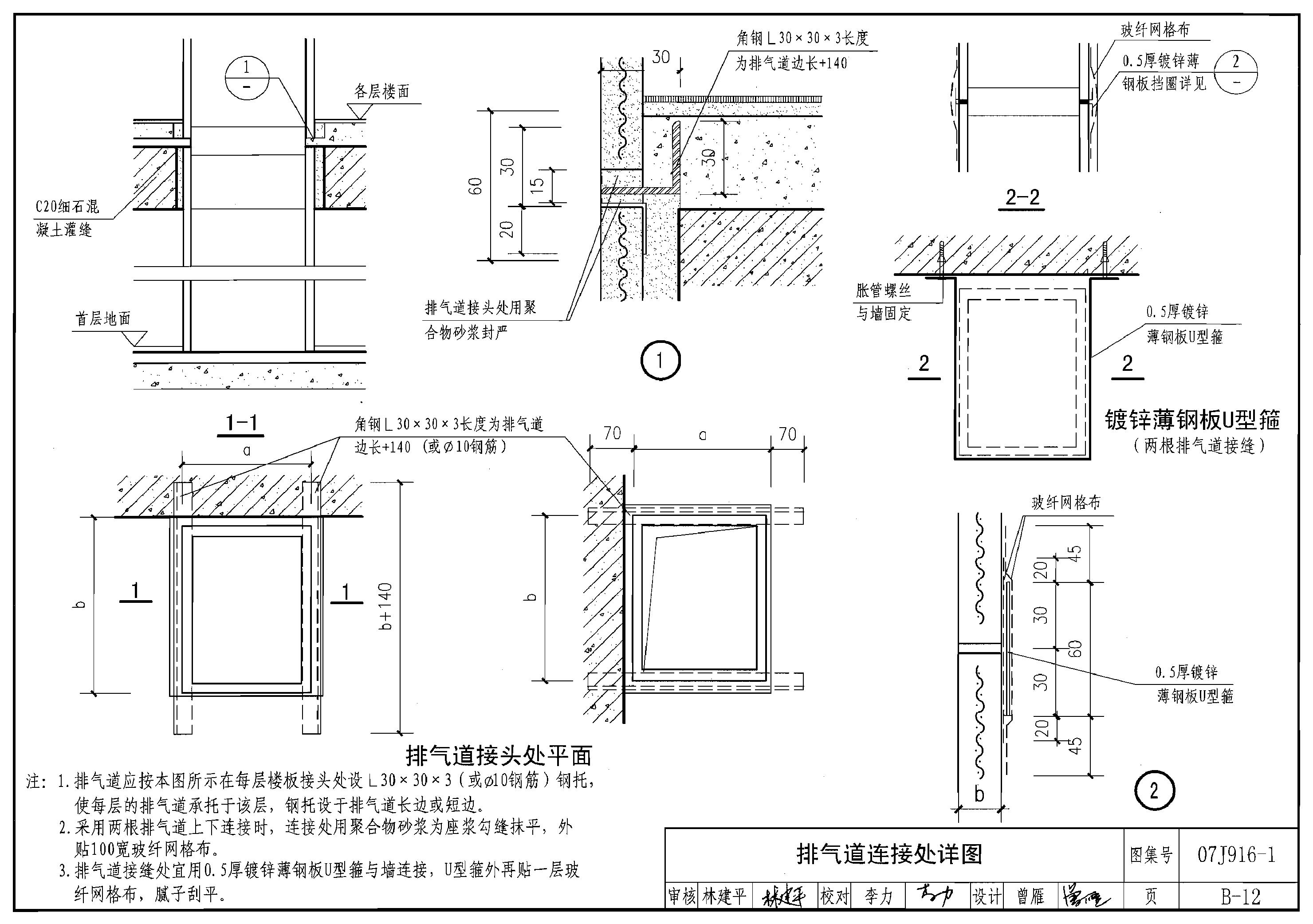
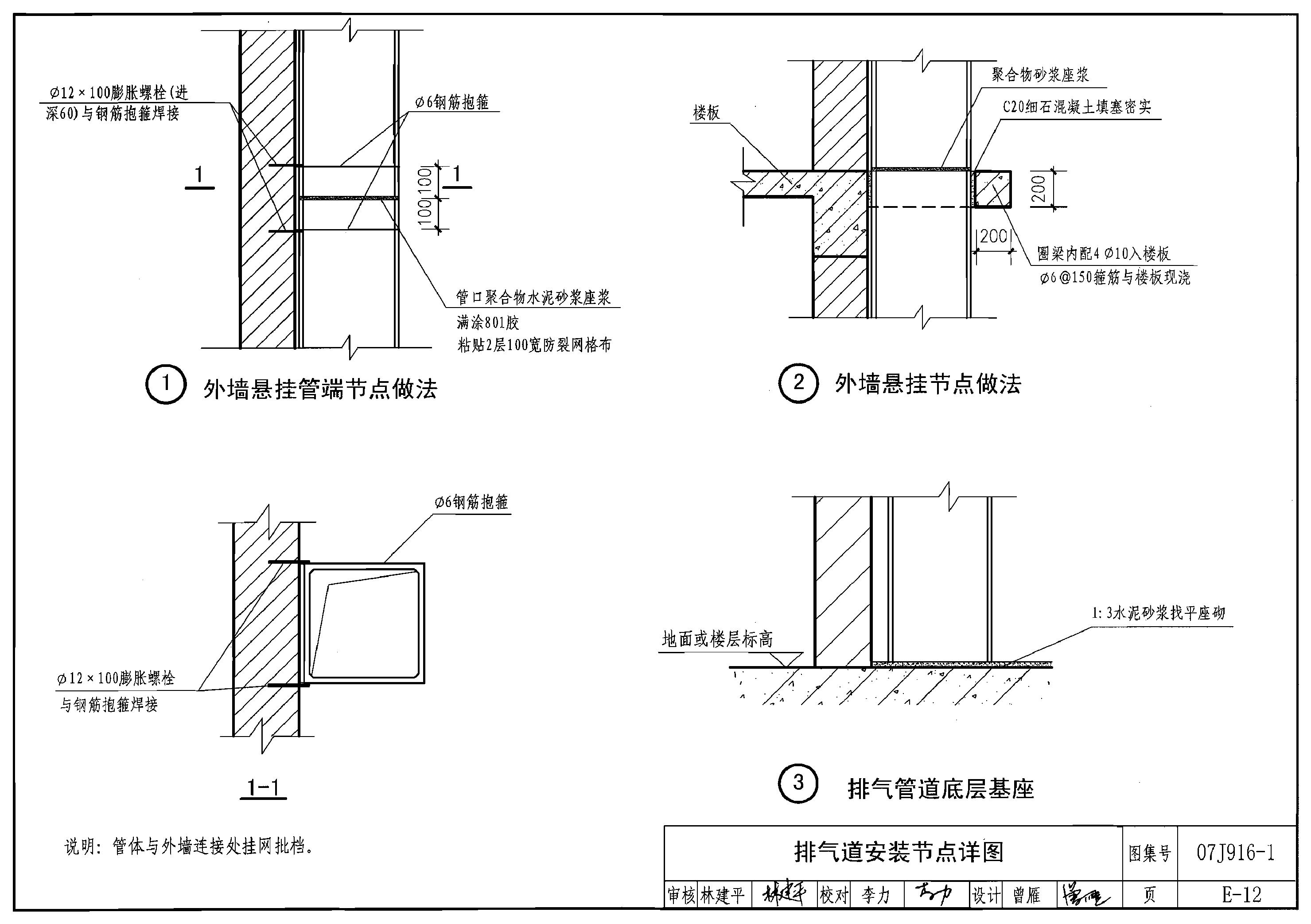
07J916-1住宅排气道(国标)
发布日期:2019-10-01 15:50:53













































































上一篇:防火阀和排烟防火阀的区别
下一篇:防火止回阀真的安全可靠吗?
相关信息
- 2021-08-10烟道漏烟常见情况
- 2021-02-04通风系统中常用风帽的类型及其作用...
- 2021-01-07烟道施工技术交底
- 2020-12-04机制烟道安装技术交底
- 2020-11-14烟道开裂原因及预防措施...
- 2020-10-27南京辉航机制烟道建厂项目调查...
- 2020-10-12排油烟气防火止回阀(简称防火止回...
- 2020-01-07防火止回阀真的安全可靠吗?...
- 2019-11-22如何正确选购厨房烟道止逆阀...
- 2019-10-0107J916-1住宅排气道(国标)...